Casa Matilde

Milano San Siro (2024)

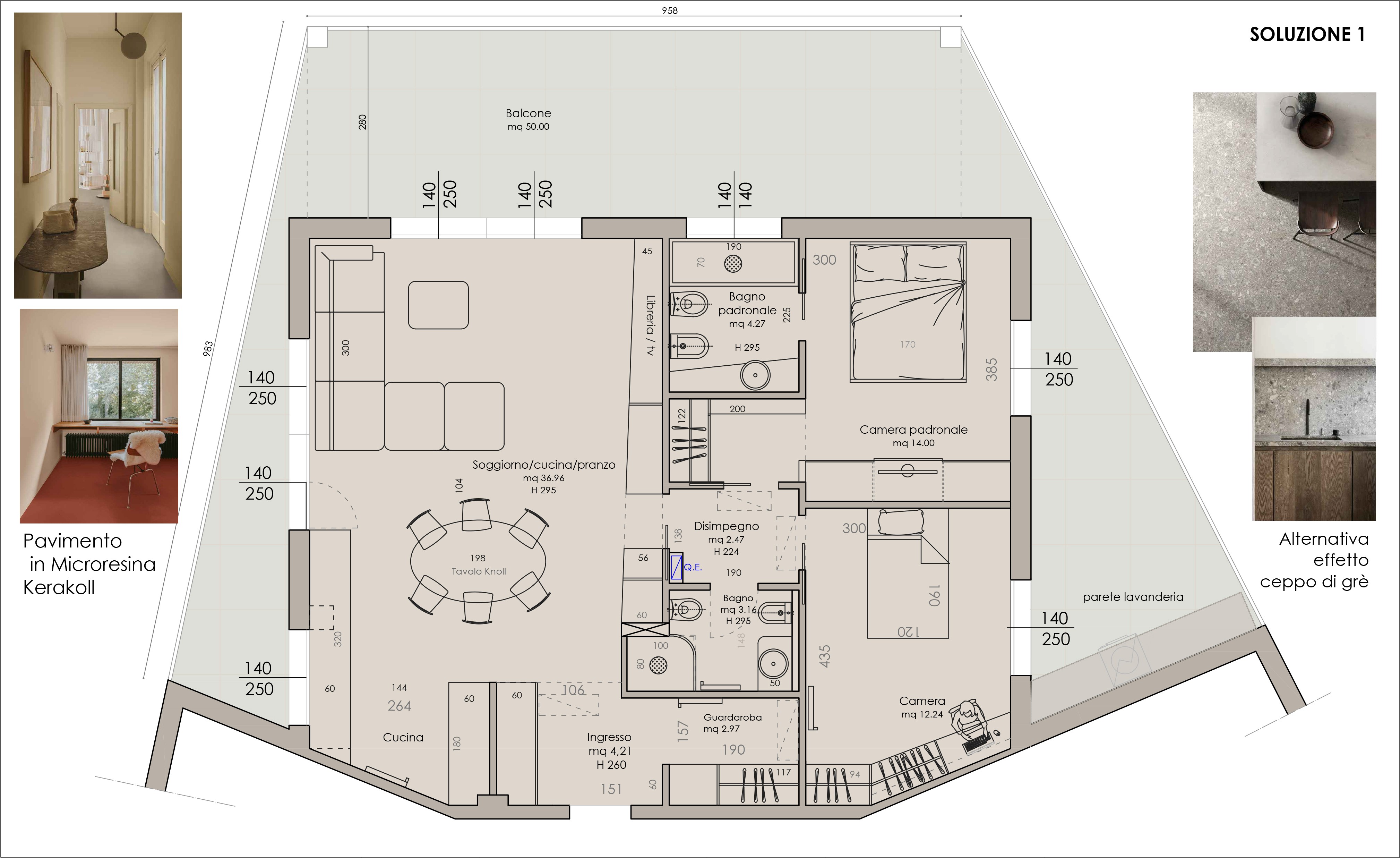
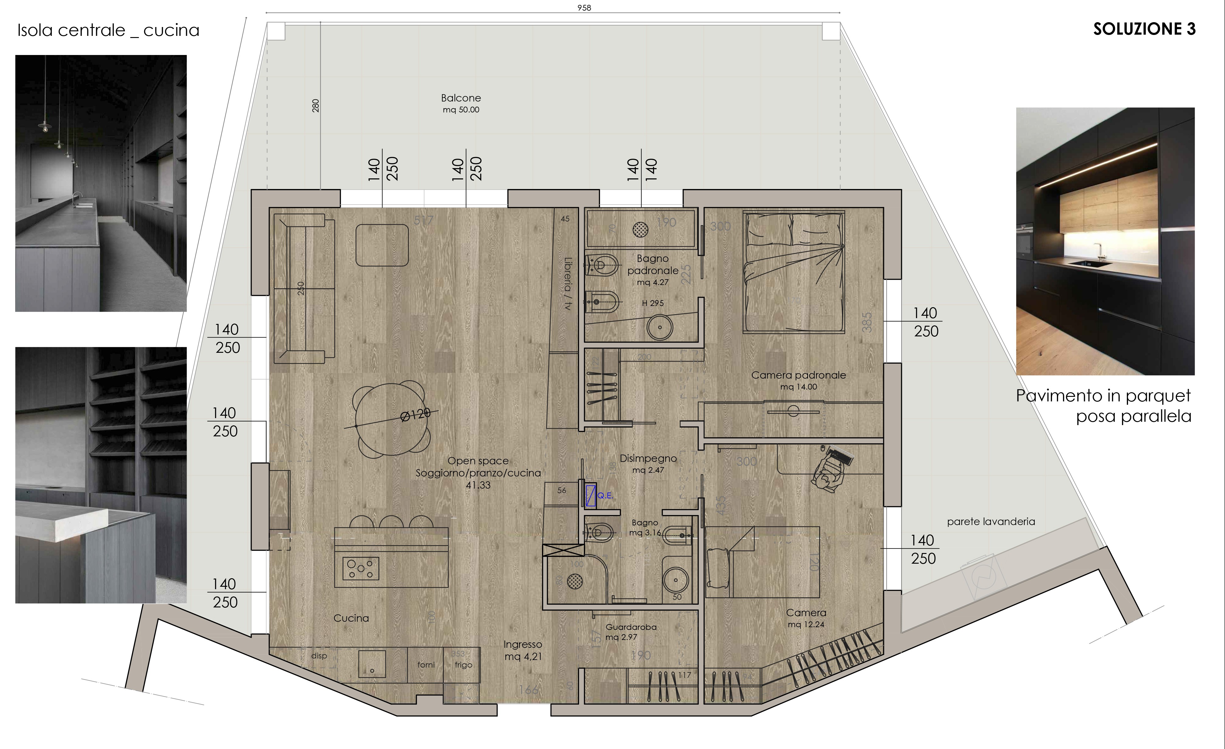
L' apertura della cucina sul soggiorno... un unico spazio, sinonimo di convivialità , diviso in due anime ... poteva esser sfruttato  distribuendo le sue funzionalità in modi diversi.

Quindi è stato interessante prenderci tutto il tempo nella prima fase di progettazione per sperimentare spazi versatili nelle diverse soluzioni...

L'arco aggiunge interesse architettonico nello spazio  , diventa l'invito ad accedere alla zona notte ma che è segno di una progettazione morbida fatta di linee curvee e anche viste teatrali.Sulle pareti il rosa accostato a palette neutre funziona perfettamente e diventa raffinato ed elegante. Creando contrasti con l'arredo che può spaziare dal cacao a qualche tocco di nero , si crea un effetto interessante .

Leggi Tutto

Richiesta Informazioni

Compila il form contatti, indicando la tua richiesta e verrai ricontattato