Plurilocale per una grande famiglia

Rimini (2022)

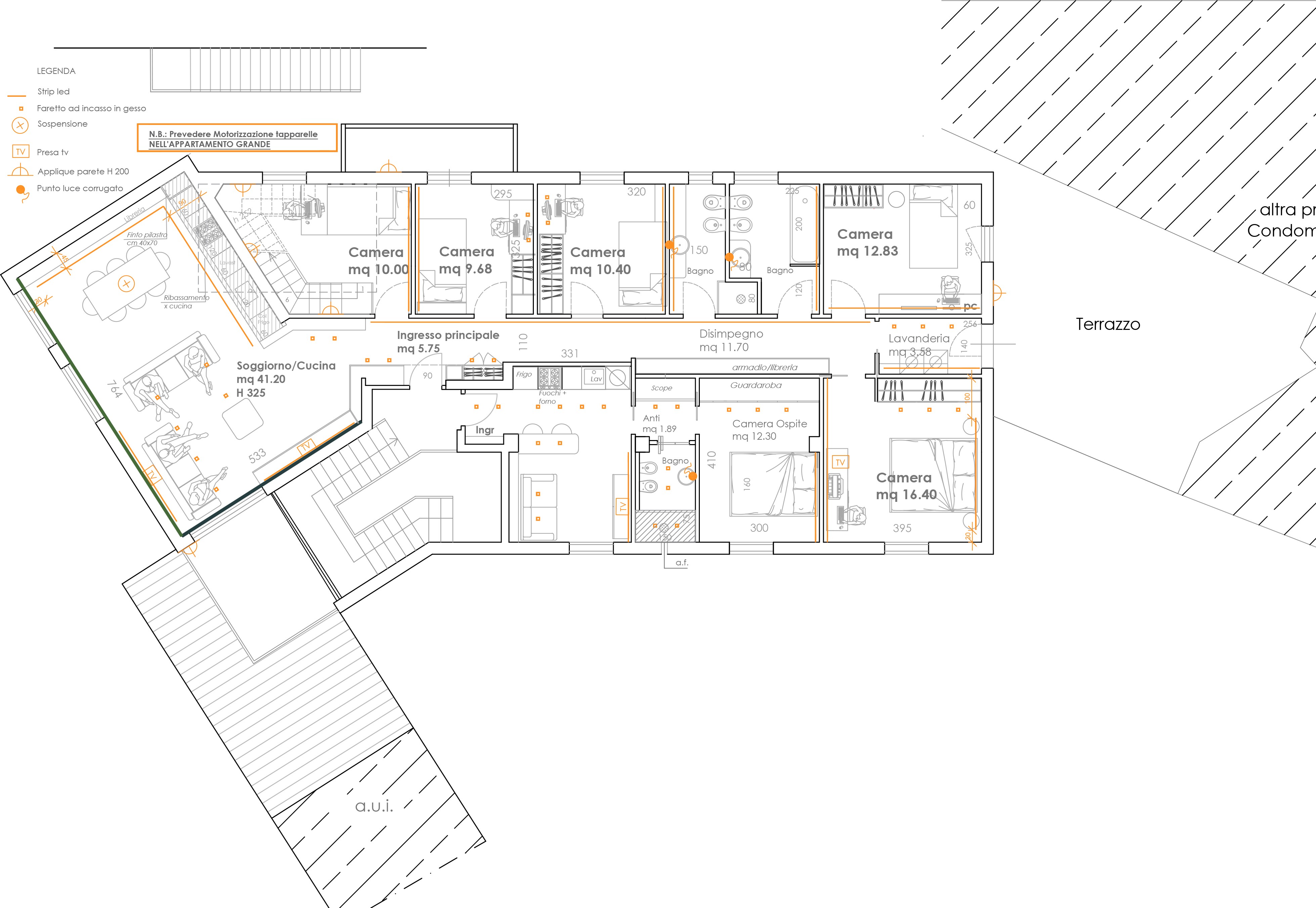
Ben cinque camere da letto ... e una distribuzione planimetrica che ha reso proprio  lo spazio di distribuzione un taglio luminoso caratterizzante.

Leggi Tutto

Richiesta Informazioni

Compila il form contatti, indicando la tua richiesta e verrai ricontattato